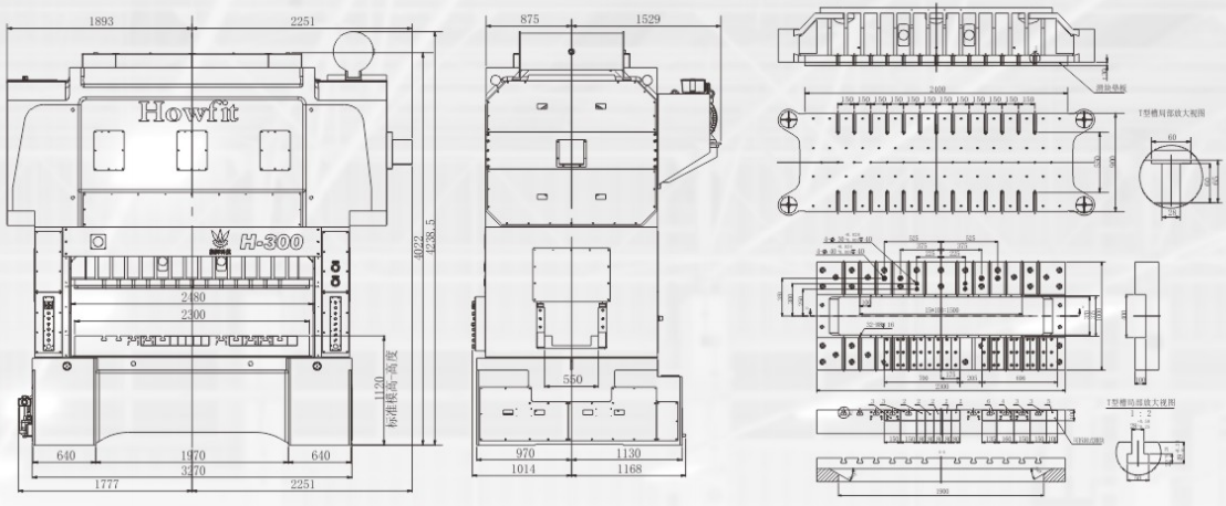
H-300T 4 Post Guide and 2 Plunger Guide Gantry Type Precision Press
Main Technical Parameters:
| Model | H-300T | |
| Capacity | KN | 3000 |
| Stroke length | MM | 30 |
| Maximum SPM | SPM | 450 |
| Minimum SPM | SPM | 150 |
| Die height | MM | 400-450 |
| Die height adjustment | MM | 50 |
| Bolster area | MM | 2300×1000 |
| Slider area | MM | 2300×900 |
| Bolster opening | MM | 1800×300 |
| Main motor | KW | 55 4P |
Main Features:
1.The press frame adopts high-strength cast iron,and the internal stress of theworkpiece is eliminated through natural long time after precisetemperature control and tempering,so that the performance of the bedworkpiece reaches the best state.
2.The split gantry structure prevents the problem of opening of the machine bodyduring loading and realizes the processing of high precision products.
3.The crank shaft is forged and shaped by alloy steel and then machined by four-axis Japanese machine tool.The reasonable machining process and assemblyprocess ensure that the machine tool has small deformation and stable structureduring operation.
4.The press adopts 4 post guide and 2 plunger guide guiding structure,which canreasonably control the displacement deformation between workpieces.Togetherwith the forced oil supply lubrication system,the machine tool can minimize theslight themal deformation under long time operation and partial load condition,which can guarantee the long time high precision product processing.
5.Human-madine interface microcomputer control to acieve the visual managementof the operation,the number of products,machine status at aglance (the subsequentadoption of a central data processing system,a screen to know all machine workstatus,quality,quantity and other data).
Dimension:
Press Products:





